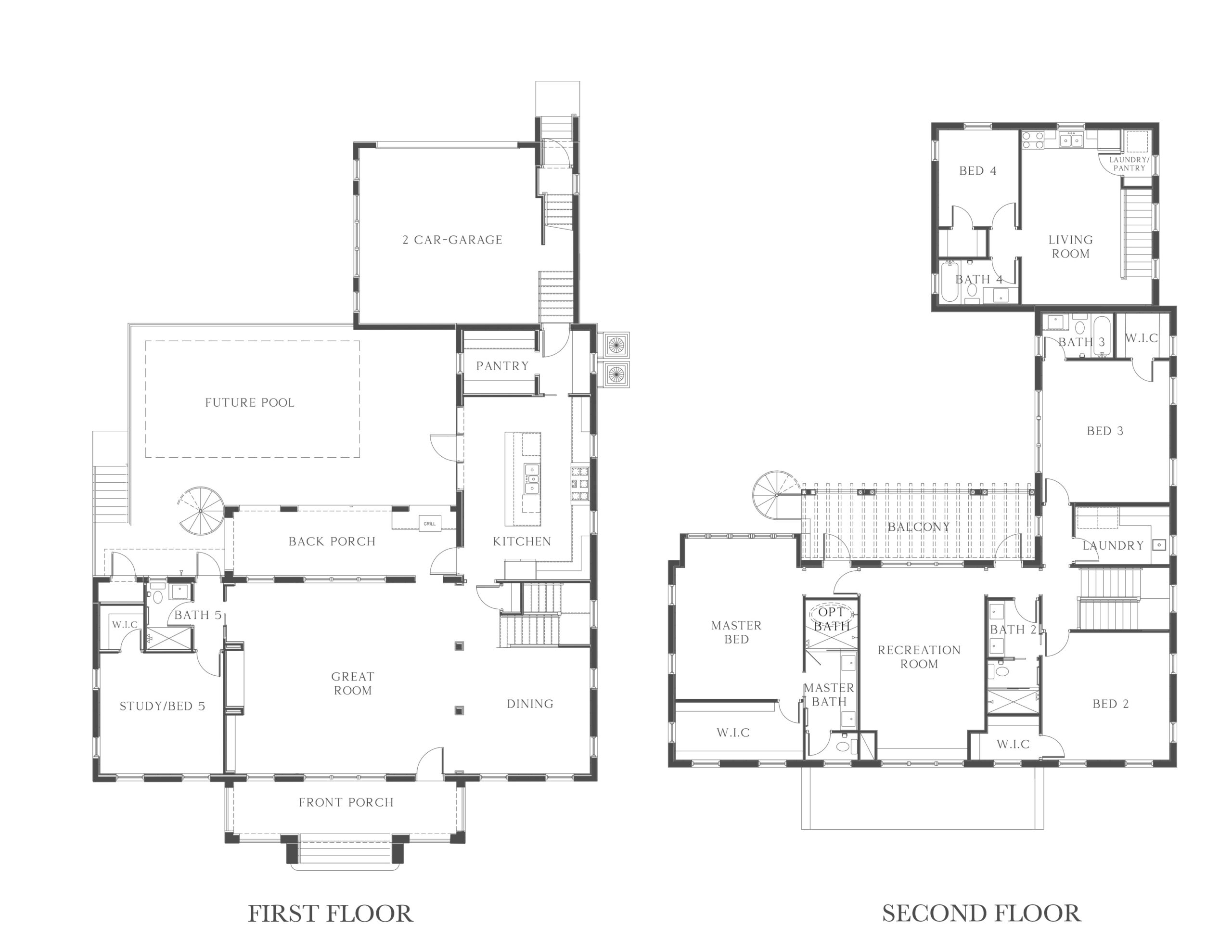
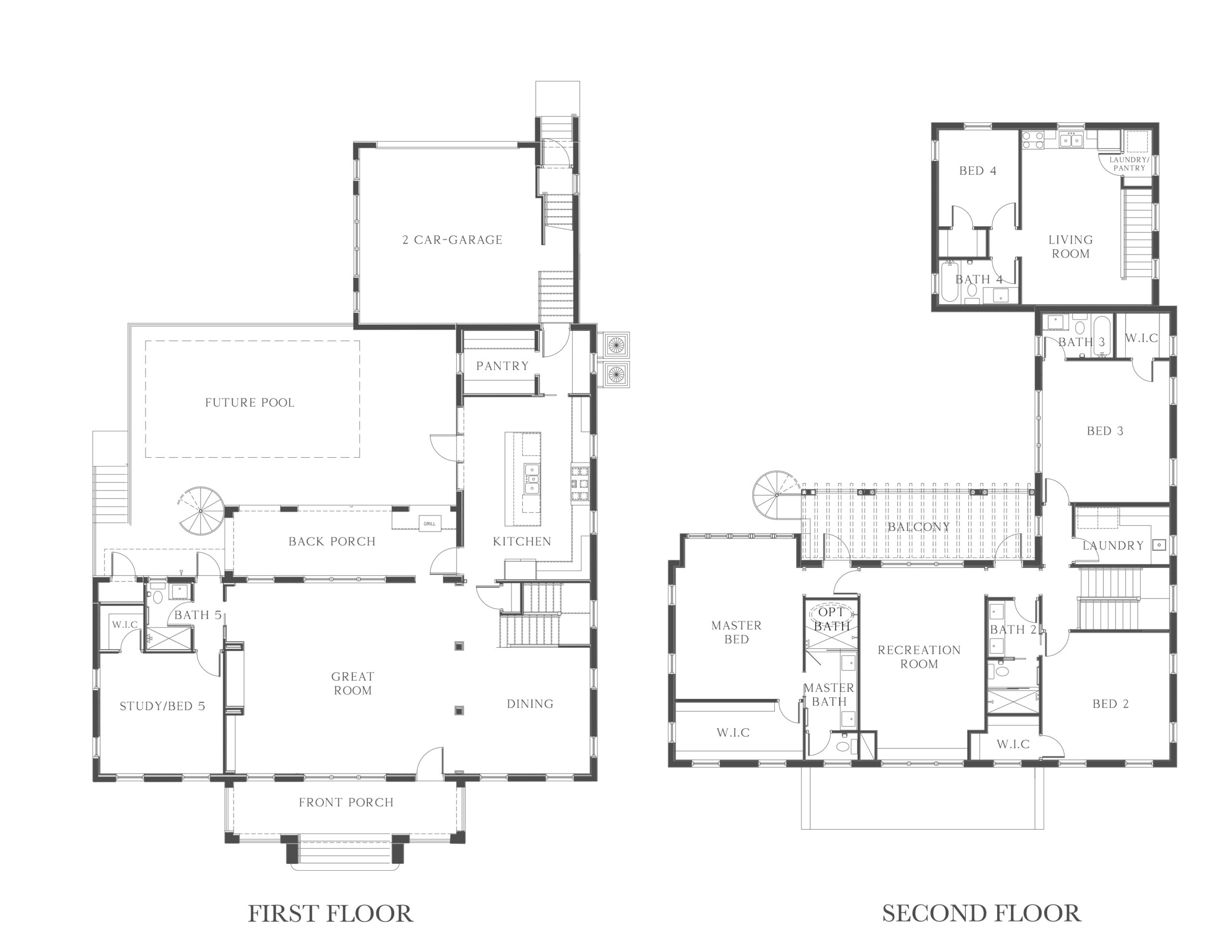
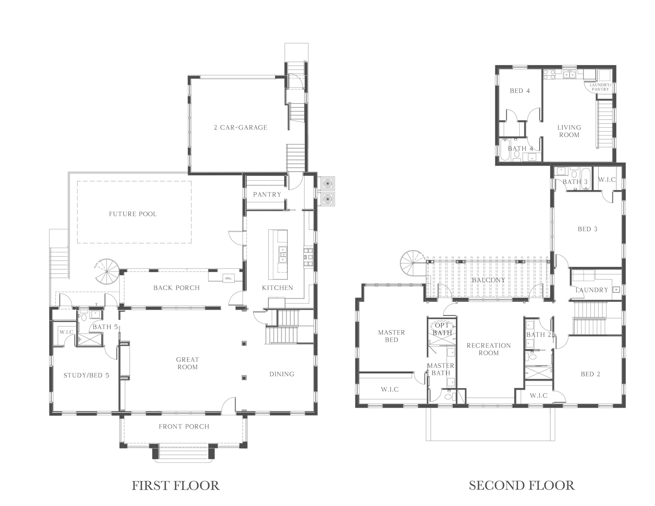
Custom Plan 1700 Beach West

Leave a Reply

Your email address will not be published. Required fields are marked *