Skip to content
Get In Touch
MENU
1233 47th Ave N
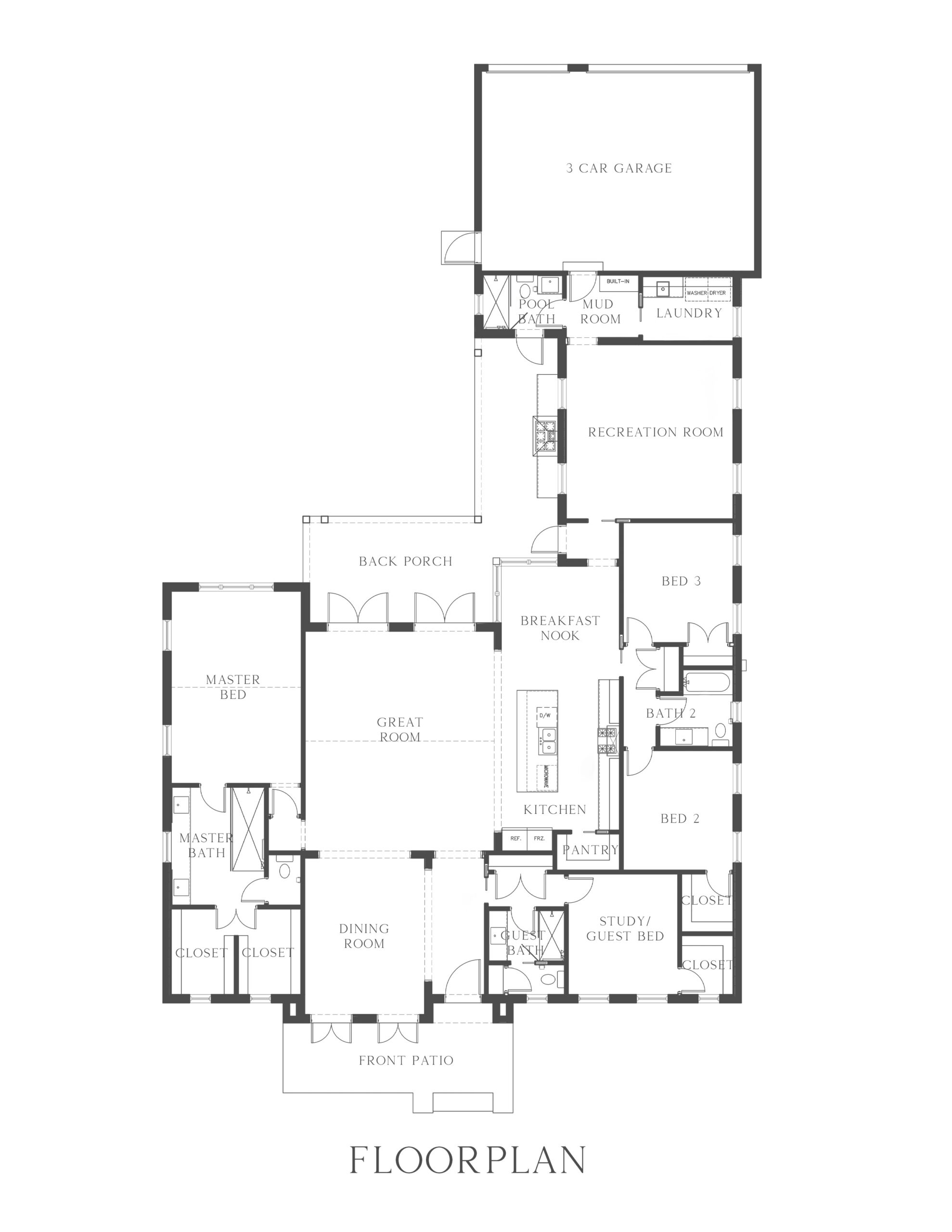
Floor Plan Features
Model Name
Size
3033 sq ft
Bedrooms
4
Bathrooms
4
BACK TO HOMES FOR SALE
Contact Us
Please enable JavaScript in your browser to complete this form.
Please enable JavaScript in your browser to complete this form.
Name
*
Desired an Are
Email
*
Phone
*
Desired Spend
*
Desired Location
*
Timeline
*
Are you working with an agent? If so, who?
*
For all other inquiries, complete the
Contact Us form here
Submit
About
Build Our Floor Plans
Homes For Sale
Our Floor Plans
Our Work
Our Team
Contact
About
Build Our Floor Plans
Homes For Sale
Our Floor Plans
Our Work
Our Team
Contact